Original size 2479x3500

Дизайн-проект квартиры в Revit

PROTECT STATUS: not protected
18

Данный курс был посвящен освоению программы Revit, где студенты с нуля разрабатывали дизайн-проект существующей квартиры. Для полного усвоения всех классических и необходимых инструментов в работе, был выполнен альбом чертежей, включающий в себя следующие стадии:

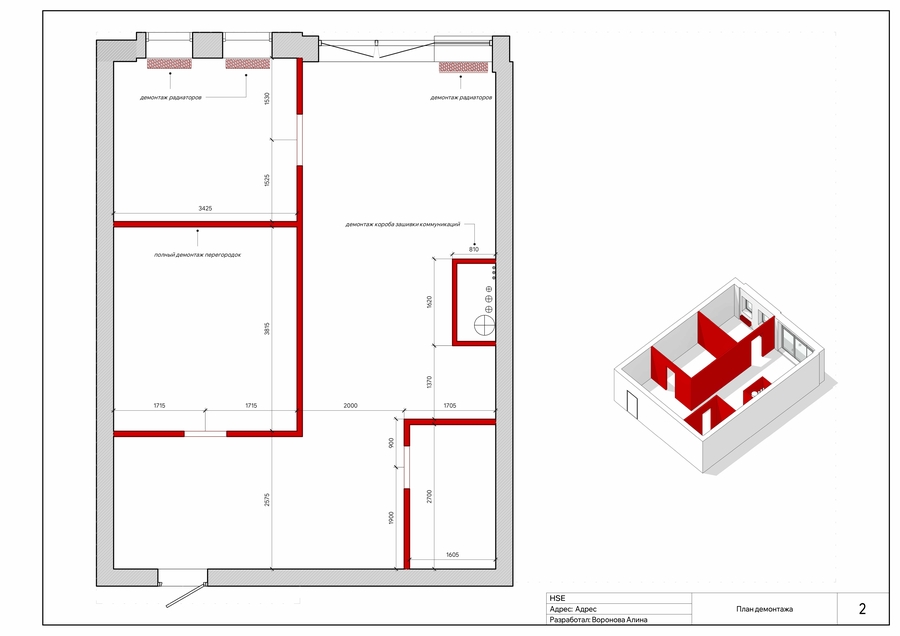
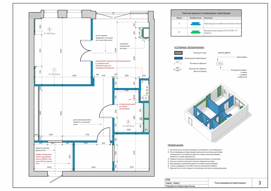
- стройка; - демонтаж; - монтаж; - отделка; - проект.

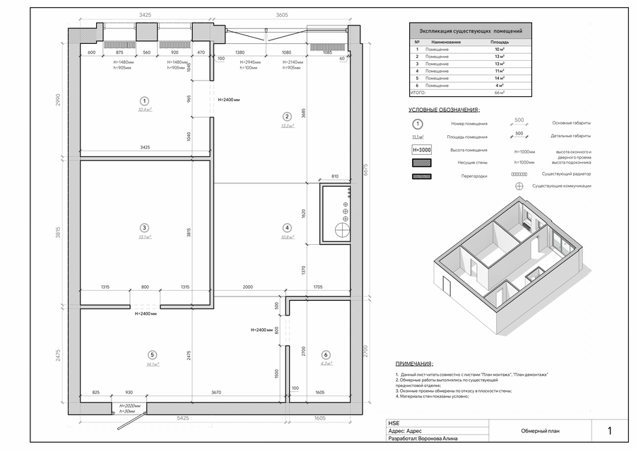
НАЧАЛЬНЫЕ СТАДИИ

0

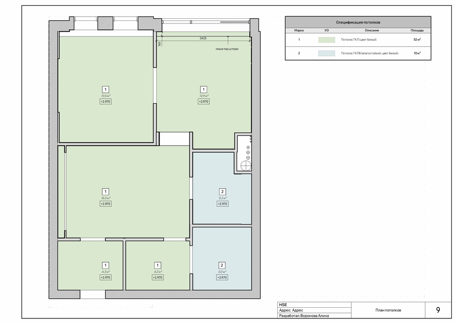
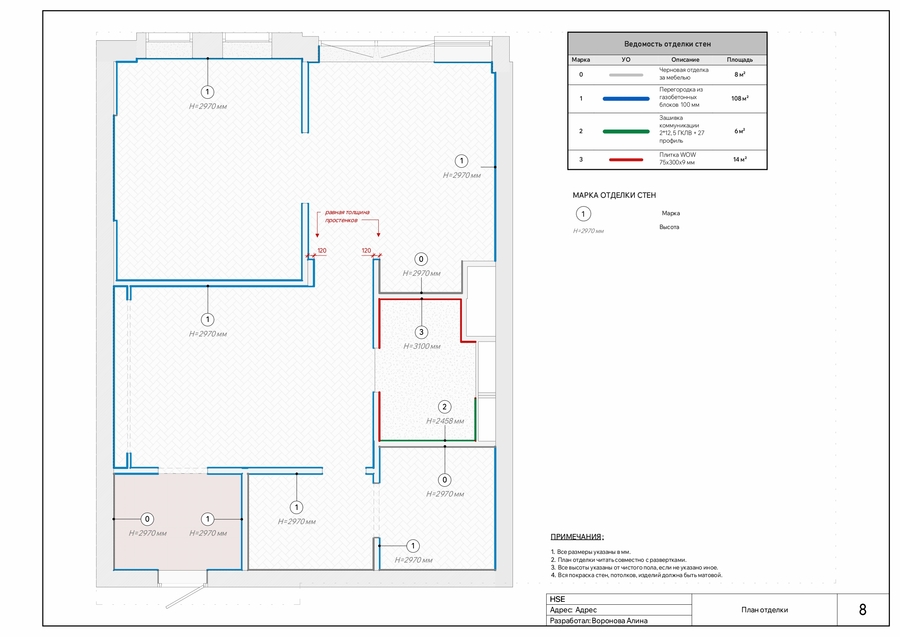
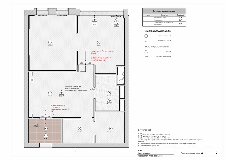
СТАДИЯ ОТДЕЛКИ

0

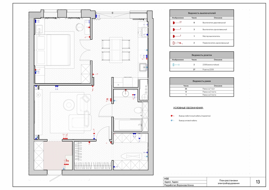
СТАДИЯ ПРОЕКТ

Данная категория чертежей включает в себя расстановку мебели, а также раздел осветительных приборов и электрооборудования.

0
Original size 2481x1755

развертка спальни

Original size 4962x3509

схемы спальни

0
Original size 4963x3510

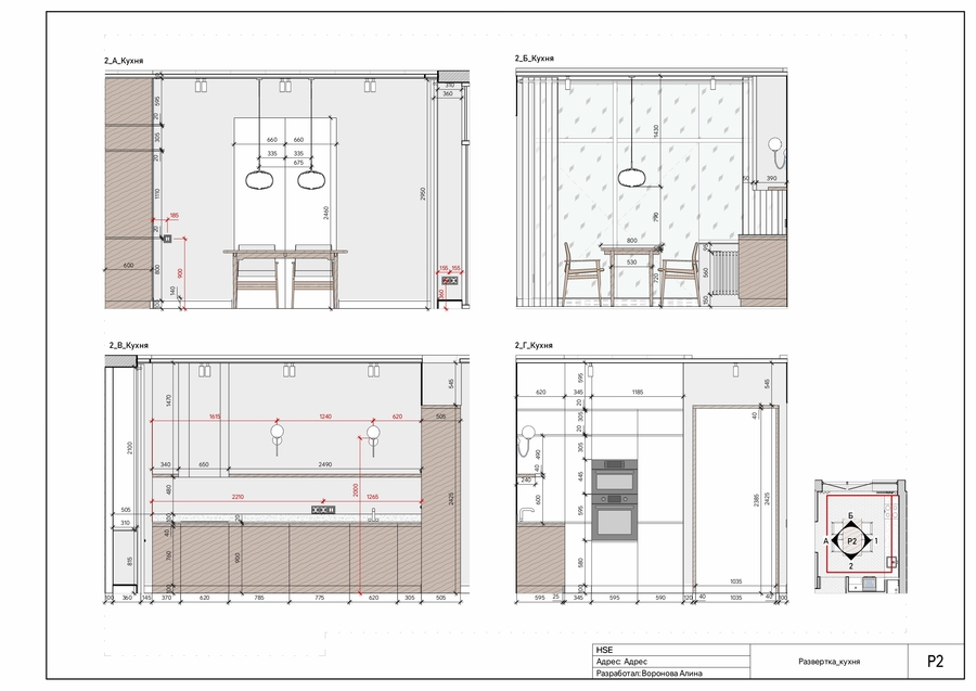
схемы кухни

Original size 2481x1755

развертка С/У

Original size 4963x3510
Дизайн-проект квартиры в Revit
18
We use cookies to improve the operation of the website and to enhance its usability. More detailed information on the use of cookies can be fo...
Show more