
Современные библиотеки, как общественные пространства нового формата, давно вышли за рамки традиционного понимания. Это не просто места для чтения книг, а досуговые центры с мультимедийными зонами, пространствами для мероприятий, коворкингами и выставочными площадками. Именно такое многофункциональное пространство предлагается создать на базе усадьбы Демидова.

1. ПРЕДВАРИТЕЛЬНЫЕ ДАННЫЕ И КОМПЛЕКСНЫЕ НАУЧНЫЕ ИССЛЕДОВАНИЯ
Квартал, расположенный в Красносельском районе города Санкт-Петербург ограничен улицами: Пограничника Гарькавого, Летчика Пилютова, проспектом Ветеранов и Петергофским шоссе, является знаковым историческим местом для жителей города. В настоящее время в квартале большинство исторических зданий в аварийном состоянии. Объект культурного наследия федерального значения- главный дом усадьбы Демидова П. в данный момент заброшен и также находится в аварийном состоянии.
Ситуационный план и этапы формирования застройки квартала
2. ПРОЕКТНОЕ ГРАДОСТРОИТЕЛЬНОЕ ПРЕДЛОЖЕНИЕ
Основные градостроительные предложения в концепции благоустройства квартала Сосновой поляны: 1. Благоустройство территории квартала 2.Создание пешеходного бульвара связывающего основные проектируемые точки притяжения в квартале 3. Реконструкция и приспособление Усадьбы Демидова П. 4. формирование новых пешеходных путей и точек притяжения
3. РЕСТАВРАЦИЯ И ПРИСПОСОБЛЕНИЕ ОБЪЕКТА КУЛЬТУРНОГО НАСЛЕДИЯ — ГЛАВНОГО ДОМА УСАДЬБЫ ДЕМИДОВА П.АРХИТЕКТРНЫЙ ОБЛИК


Усадьба Демидова — один из ярких примеров классической архитектуры XVIII века, созданный по проекту выдающегося архитектора Ивана Старова. Расположенная в Красносельском районе Санкт-Петербурга, усадьба гармонично сочетала принципы классицизма и природного окружения. Довоенный период: В первоначальном виде здание представляло собой яркий пример классицизма, с характерными элементами декора, включая балконы, колонны, витражное остекление и округлый эркер южного фасада. Военный и послевоенный периоды: Во время Великой Отечественной войны здание было серьезно повреждено. Западный корпус был полностью разрушен, южный фасад лишился ряда декоративных элементов, а восточный корпус перестроен с изменением пропорций. После войны здание подверглось упрощенной реконструкции.
Схема формирования архитектурного облика Усадьбы Демидова П.
Проект восстановления базируется на анализе исторических фотографий, архивных чертежей и картограмм утрат. Ключевыми элементами, требующими восстановления, являются: 1. Балконы. Они возвращают фасаду пластичность и зрительную динамику. В проекте предусматривается их реконструкция на основе архивных данных с восстановлением оригинального рисунка ограждений. 2. Колонны. Эти элементы, подчеркивающие вертикальную структуру здания, будут воссозданы с использованием натурных замеров и архивных материалов. 3. Витражное остекление. Планируется восстановление витражей на основе сохранившихся описаний и аналогов. 4. Эркер. Центральный элемент южного фасада, подлежащий полному восстановлению. Его форма и пластика, воссозданные по архивным фотографиям усадьбы «Литания», подчеркивают гармоничность композиции.
Проектные фасады Усадьбы Демидова П. с показом реконструктивных мероприятий.
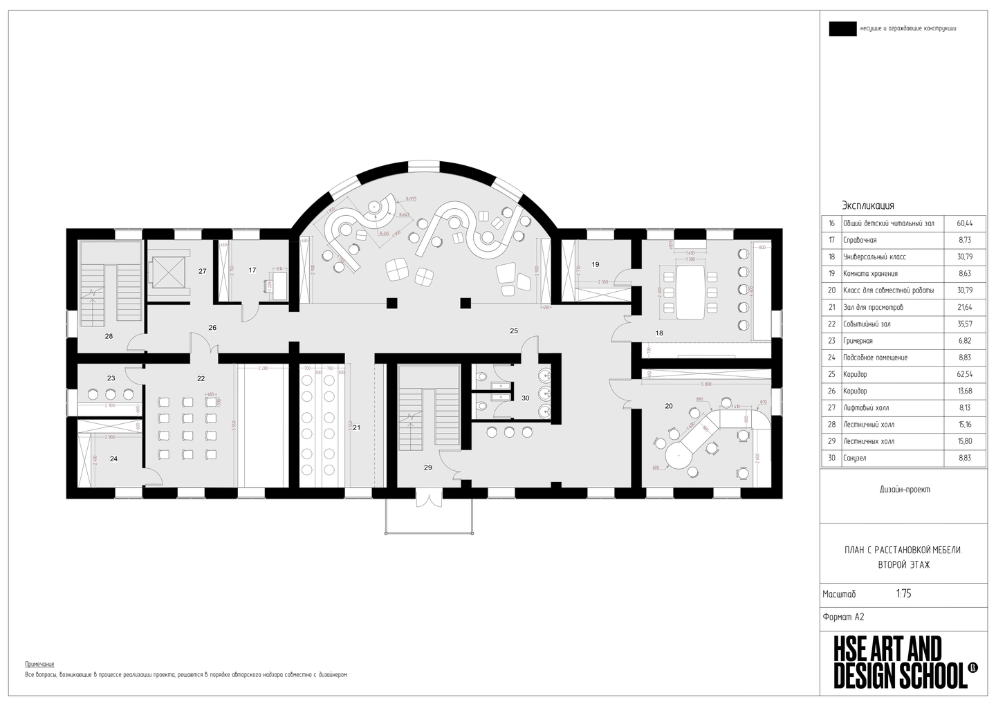
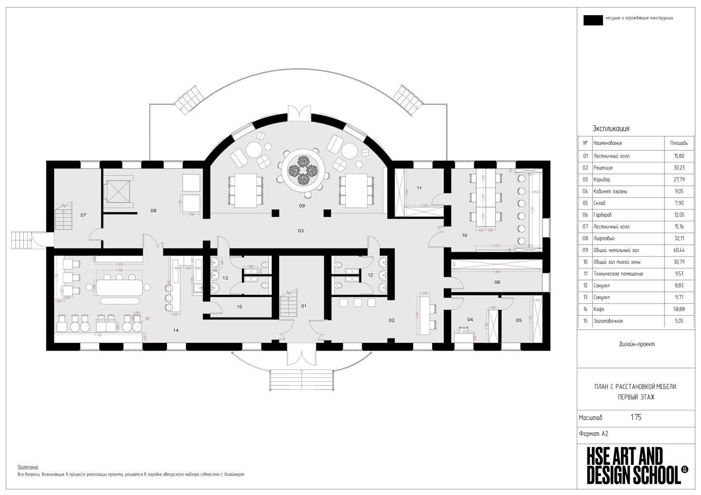
4. ДИЗАЙН-ПРОЕКТ ИНТЕРЬЕРА УСАДЬБЫ ДЕМИДОВА П. С ПРИСПОСОБЛЕНИЕМ ПОД БИБЛИОТЕКУ
Основные проектные предложения
Проектное функциональное зонирование
Основные аналоги проектных решений
Визуализация зоны кафе
Визуализация зоны кафе
Визуализация зоны ресепшен
Визуализация зоны универсального класса
Визуализация детского читального зала
Визуализация детского читального зала
Визуализация общей громкой зоны 1 этажа
Визуализация класса с амфитеатром
Рабочая документация проекта