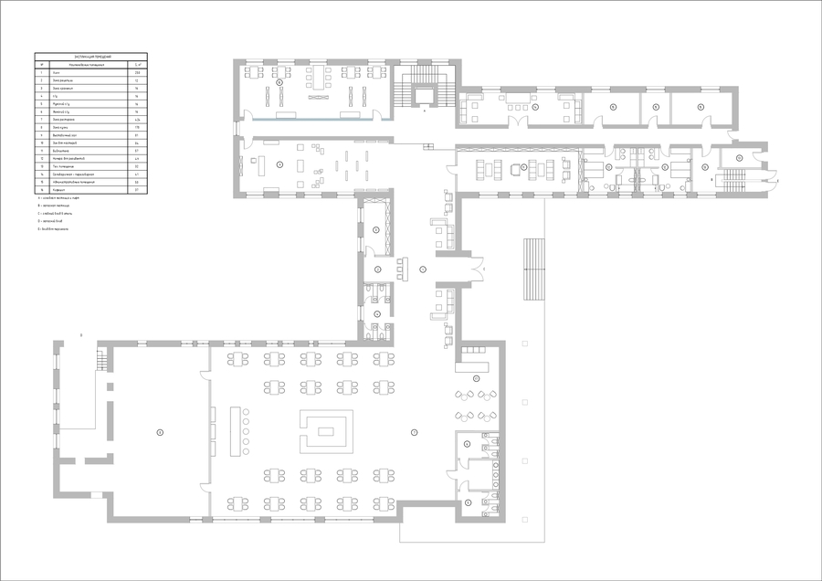
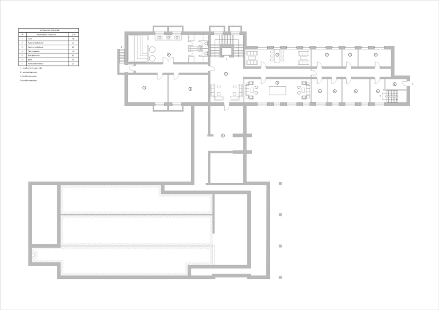
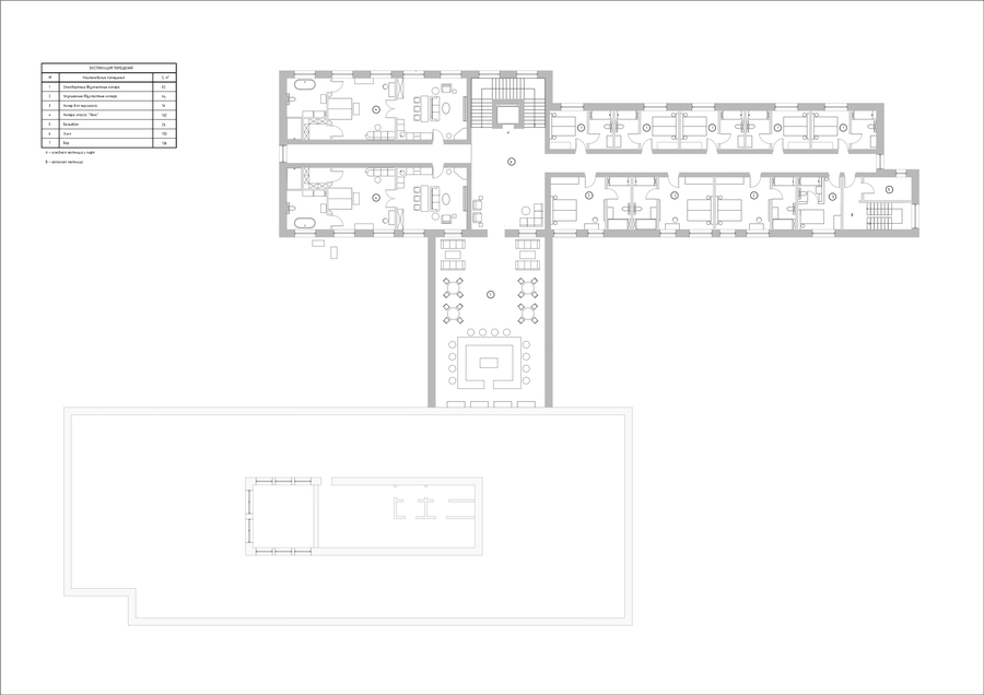
Этот отель, расположенный в городе Гжель, является уникальной арт-резиденцией, не повторяя, а изысканно переосмысливая русские мотивы. Аутентичность и связь с историческим центром гжельского производства, где она станет источником вдохновения для современных художников.
Исходный размер 2240x2800
Исходный размер 2240x2800
Исходный размер 2240x2800
Исходный размер 2000x2500
Исходный размер 2000x2500
