Original size 2474x3500

«A family apartment with a baby»

Longread translated automatically
PROTECT STATUS: not protected
52
big
Original size 3500x2475
big
Original size 3500x2475

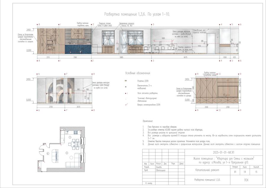
The purpose of the project, Family with Baby Housing, is to provide a comfortable space for a family with two children, taking into account the characteristics and interests of all residents of the home.

big
Original size 3500x2475

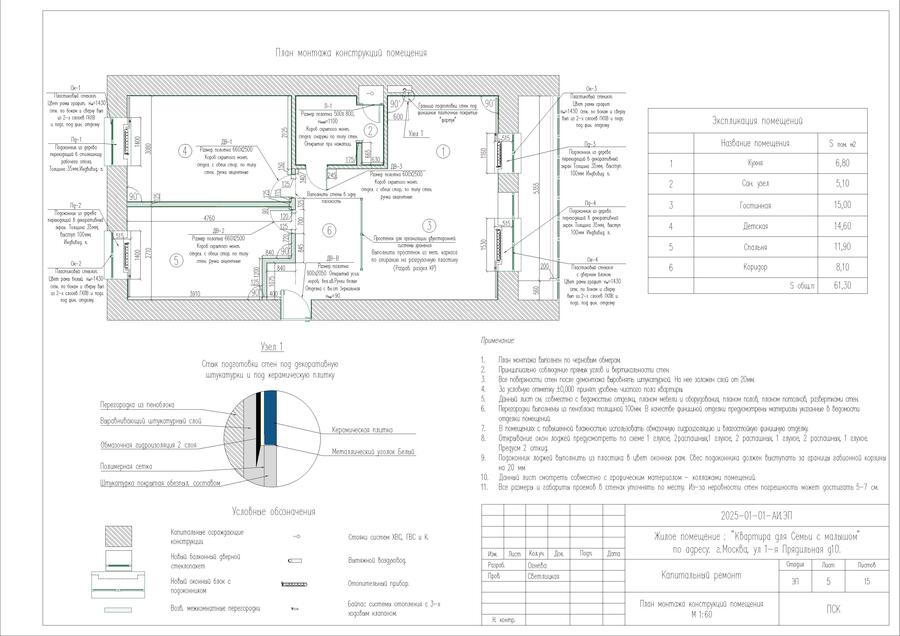
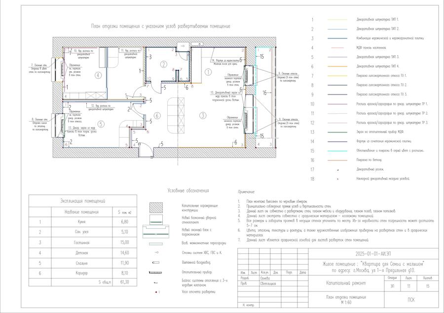
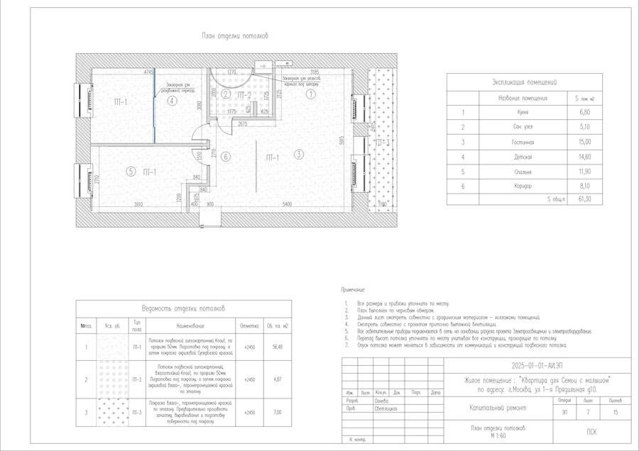
The basic data for the design are as follows: The space-mapping plan is List 1 and the Terms of Reference.

Original size 3500x2475
Original size 3500x2475
Original size 3500x2475
Original size 3500x2475

In order to implement the project and improve the ergonomics of the space, we will need a partial remodelling of the apartment.

Original size 3500x2475
Original size 3500x2475
Original size 3500x2475
Original size 3500x2475
Original size 3500x2475
Original size 3500x2475
Original size 3500x2475
Original size 3500x2475
0
Original size 4961x3508
«A family apartment with a baby»
52
We use cookies to improve the operation of the website and to enhance its usability. More detailed information on the use of cookies can be fo...
Show more