Тема ВКР
«Ревитализация среды комплекса построек дома купца Филиппова с организацией паломнического центра в г. Старица, Тверской области»
I. ВВЕДЕНИЕ
Структура презентации
I. Введение
- Структура презентации
- Визуальное исследование
- Пояснительная записка
II. Предпроектный анализ
- Историко-архивные и археологические исследования
- Ситуационный план
- Природно-ландшафтный контекст
- Архитектурно-пространственный контекст
- Экономический контекст
III. Проектное предложение
- Варианты объемно-планировочного решения
- Функциональное зонирование
- Генеральный план участка
- Основные проекции
- Освещение
- Проектные ТЭП
- Визуализации
Визуальное исследование
Тема ВИ: «Особенности визуального облика объектов гостеприимства паломнических путей»
Обложка ВИ: интерьер спальни паломнического приюта на пути Камино де Сантьяго в Руавьехе, Логроньо, Испания. Архитектор Серхио Рохо | Источник: archdaily.com
Аннотация
Цель исследования — выявление и анализ особенностей визуального облика объектов гостеприимства на христианских паломнических путях.
Задачи исследования: изучение разнообразия паломнических маршрутов в Европе, на Ближнем Востоке и в России; поиск информационных ресурсов, содержащих перечень объектов размещения паломников в каждом из регионов; подробное изучение сайтов объектов размещения паломников в каждом из регионов; отбор визуального материала, удовлетворяющего требуемому уровню качества; определение критериев оценки объектов; анализ отобранного материала по заданным критериям; сравнительный анализ организации объектов в трех обозначенных регионах по ключевым критериям; выявление основных тенденций в организации среды паломнических обителей и комплексов.
Результат исследования — перечень принципов и рекомендаций по созданию современных архитектурно-дизайнерских решений паломнических
Выводы из исследования
Трансформация визуального облика происходит в направлении синтеза традиционных форм и современных функциональных решений.
Наблюдается тенденция к сохранению региональной идентичности при модернизации объектов.
Происходит адаптация исторических зданий под современные стандарты комфорта при бережном отношении к архитектурному наследию.
Новые объекты строительства отражают поиск баланса между традиционной религиозной символикой и современными дизайнерскими решениями.
Визуальные изменения учитывают новые потребности паломников в комфорте, но сохраняют духовную атмосферу архитектуру и дизайн.
В начале проектной работы благодаря полученной от Заказчика критике идеи был сделан дополнительный существенный вывод — в настоящих реалиях современный паломнический центр может существовать лишь в комплексе построек, как одна из совокупности бизнес-единиц, приносящих не основной доход.
Пояснительная записка
Проектное предложение ВКР представляет из себя Архитектурно-градостроительную концепцию ревитализации среды комплекса построек дома купца Филиппова с организацией паломнического центра.
Первоначальный эскиз видения Паломнического центра. Март 2025
Старица обладает богатым духовным наследием, а также входит в орбиту паломнических маршрутов к святыням Тверской земли.
Одна из предпосылок создания проекта — необходимость переосмысления и развития современного паломнического туризма и создания комфортных условий для путешествующих с учетом специфики этого туристического направления. Ввиду более низкой покупательской способности паломников по сравнению с обычными туристами*, паломнический центр целесообразно проектировать как одну из функций комплекса. Основные бизнес-единицы — более рентабельные виды помещений.
Создание Паломнического центра в доме купца Филиппова поспособствует развитию всего города: — привлечет большее число туристов; — увеличит продолжительность пребывания туриста; — создаст новые рабочие места; — повысит доступность и проницаемость территории; — стимулирует развитие сервисов; — укрепит идентичность города
Прогнозируемое увеличение потока туристов-паломников потребует создание дополнительных мест размещения, отличных от формата «Паломнической Деревни», ввиду высокой стоимости аренды в ней и ограниченности возможностей по её загрузке.
II. ПРЕДПРОЕКТНЫЙ АНАЛИЗ
Историко-архивные и археологические исследования
Историческая справка
С. М. Прокудин-Горский. Пятницкая церковь. Снято от Успенского монастыря. Лето 1910 года
Дом купца Филиппова расположен на набережной реки Волги рядом с Торговой площадью, на месте которой с 1962 года раполагается одна из сторон моста. Дмитрий Федорович Филиппов занимался оптовой и розничной торговлей хлебом в городе и уезде. Ныне носящая его имя, усадьба на самом деле представляет из себя три построенных вплотную дома. Они строились разными хозяевами с конца XVIII века до конца XIX века.
На первом этаже располагались склады и торговые лавки. На втором жилье хозяев и гостиничные номера. Некоторые библиографические источники утверждают, что именно здесь останавливался на ночлег Император Александр I во время своего путешествия по России.
В годы национализации дома разделили на коммунальные квартиры.
В начале 2010-х дом признали аварийным и расселили жильцов.
Архитектурно-археологические обмеры
Предоставленные командой заказчика архитектурно-археологические обмеры позволили детальнее изучить конструктивные и архитектурные особенности объекта, который ввиду аварийного состояния доступен к обзору лишь частично.
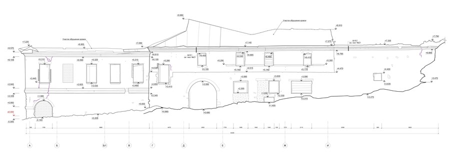
Первый этаж выложен до пят сводов из местного известняка, выше — красным глиняным кирпичом. Фасад декорирован лопатками и фигурными карнизами, окна обрамляют наличники.
Восточный фасад в осях 1-13 | Северный фасад в осях А-И | Южный фасад в осях Д-А | Западный в осях 13-1 | Детали | Склады. План в осях 1-4 | Склады. План в осях 4-8 | Склады. Разрез
Ситуационный план
Участок на плане города
Г. Старица расположен в Тверской области на трассе Тверь-Ржев, на расстоянии 250 км от Москвы и 77 км от областного центра. Участок проектирования находится в географическом центре города, на левом берегу реки Волга, отрезан от главной транспортной артерии, но соединён автомобильными и пешеходными путями набережной с новой точкой притяжения — парком Зарядье.
Ситуационный план
Участок на плане левобережного комплекса
Природно-ландшафтный контекст
Панорамы и фотофиксация
Панорама от монастыря | Панорама на монастырь. Апрель 2025
Фотофиксация. Усадьба. Апрель 2025 | Фотофиксация. Склады. Март 2025
Поперечные разрезы участка
Архитектурно-пространственный контекст
Комплекс зданий располагается в сложном архитектурном ансамбле. В непосредственной близости находятся Церковь Параскевы Пятницы XVIII–XIX веков, часовня и Борисоглебксикй Собор с высокой колокольней. От участка открывается панорамный вид на Святоуспенский мужской монастырь.
Вид с воздушного шара. Источник: Yandex.Maps | Вид с моста на архитектурный ансамбль | Вид от складов на монастырь
Экономический контекст
Существующие ТЭП
Площадь территории (земельных участков) 6927 м² Площадь застройки 2606 м²
Дом купца Филиппова (ул. Набережная д. 67): площадь застройки — 284 м² общая площадь — 283 м² жилая площадь — 137 м² нежилая площадь — 166 м²
Дом по ул. Набережная д. 69: площадь застройки — 312 м² общая площадь — 257 м² жилая площадь — 173 м² нежилая площадь — 248 м²
Дом по ул. Набережная д. 71: площадь застройки — 312 м² общая площадь — 267 м² жилая площадь — 176 м² нежилая площадь — 83 м²
Дом по ул. Набережная д. 73: площадь застройки — 284 м² общая площадь — 267 м² жилая площадь — 176 м² нежилая площадь — 83 м²
Площадь складов —1490 м2
SWOT-анализ
Запросы интересантов
III. ПРОЕКТНОЕ ПРЕДЛОЖЕНИЕ
Варианты объемно-планировочного решения
Вариант объемно-планировочного решения N1 | Вариант объемно-планировочного решения N2
Итоговое объемно-планировочное решение
Функциональное зонирование
Функциональное зонирование комплекса
Генеральный план
Схема генерального плана участка
Основные проекции
Схема плана 1 этажа усадьбы
Схема плана 2 этажа усадьбы
Схема плана 3 этажа усадьбы (призматическая надстройка)
Схема плана 1 этажа складов. Гастрономические ряды и Экспозиционный зал
Схема плана 2 этажа складов. Ресторан и Экспозиционный зал
Схема плана 1 этажа складов. Паломнический центр
Схема плана 2 этажа складов. Паломнический центр
Архитектурный разрез
Освещение
Схема светопланировки территории
Подбор осветительного оборудования
Проектные ТЭП
4 надземных этажа
Общая площадь комплекса 5030 м²
Надстройка составляет более 67% общей площади
Номерной фонд гостиницы: 23 номера Вместимость гостиницы: 65 чел.
Номерной фонд хостела: 6 номеров разл. вместимости Вместимость хостела: 40 чел.
Вместимость ресторана 40-60 чел.
Вместимость гастрономических рядов: 60 чел.
Общая вместимость комплекса: 250 чел.
Кол-во машиномест: 17 в т.ч 1 м/м для МГН
Визуализации
Вид от монастыря | Вид с воды | Перспективный вид с воздуха, «птичка»

