В основу идеи легло создание проекта квартиры и малого сада для выбранного жребием режиссёра. Мне достался Альфред Хичкок. Необходимо было передать его неповторимый стиль и атмосферу, вдохновленную знаменитыми кинокартинами создателя.



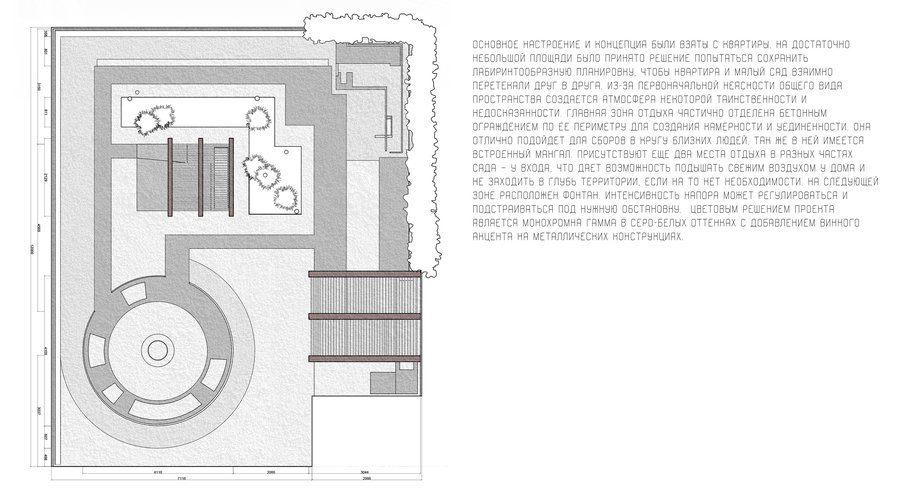
Планировочная основа малого сада представляет из себя участок общей площадью 117 м². Вход на участок осуществляется через остекленную террасу квартиры, панорамные окна гостиной обеспечивают дополнительное взаимодействие сада и интерьера.

Основными источниками освещения в темное время суток являются уличные фонари. Они отлично вписываются в общую картину сада и не берут на себя много внимания из-за своего миниатюрного размера. Так же присутствует подсветка, которая расположена по периметру водного резервуара, в основной зоне отдыха и на стене у входной группы.
В качестве основного материала в проекте был использован бетон. Так же присутствует декоративная штукатурка, дерево в деталях, зеркало для дополнительного отражения и создания запутанности, решетчатые конструкции выполнены из металла.
