Original size 2480x3500

Дизайн-проект санузла

PROTECT STATUS: not protected

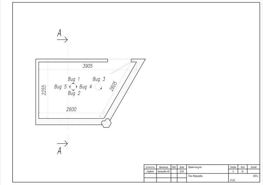
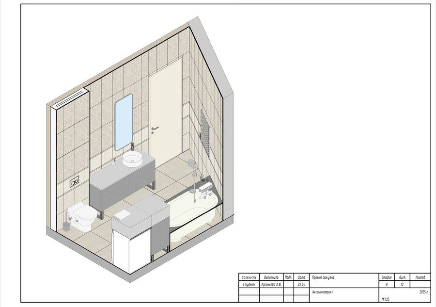
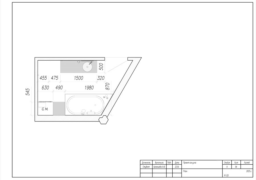
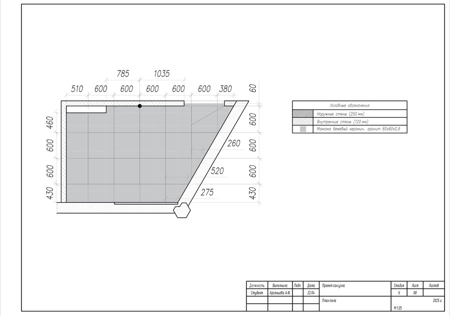
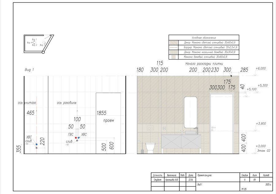
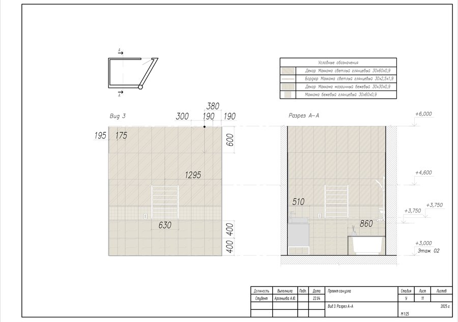
Альбом чертежей содержит планы, виды и аксонометрии санузла в загородном доме, разработанном в прошлом модуле.

Дизайн помещения соответствует дизайну остальных помещений здания. Комплект чертежей подготовлен для проведения строительно-монтажных и отделочных работ.

0
0
0
Дизайн-проект санузла
We use cookies to improve the operation of the website and to enhance its usability. More detailed information on the use of cookies can be fo...
Show more