
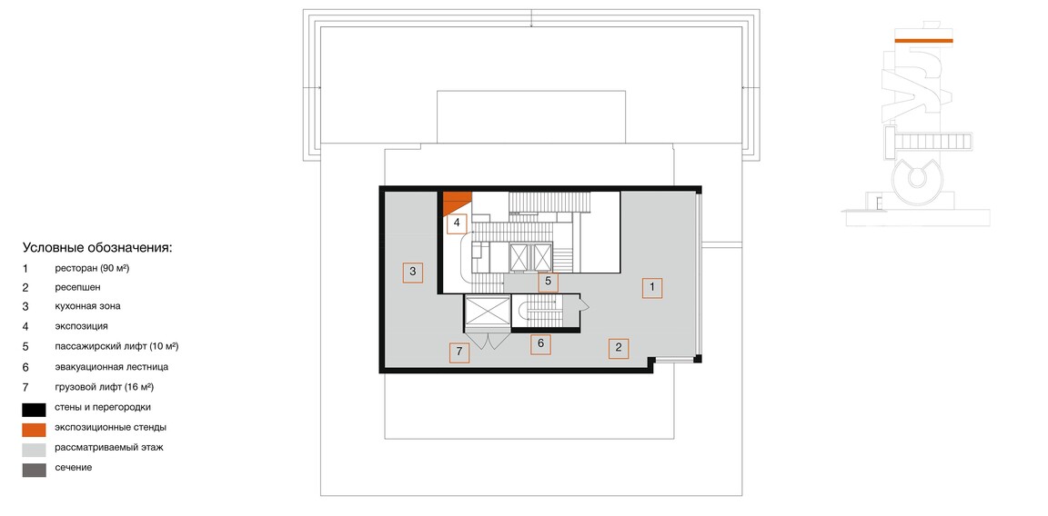
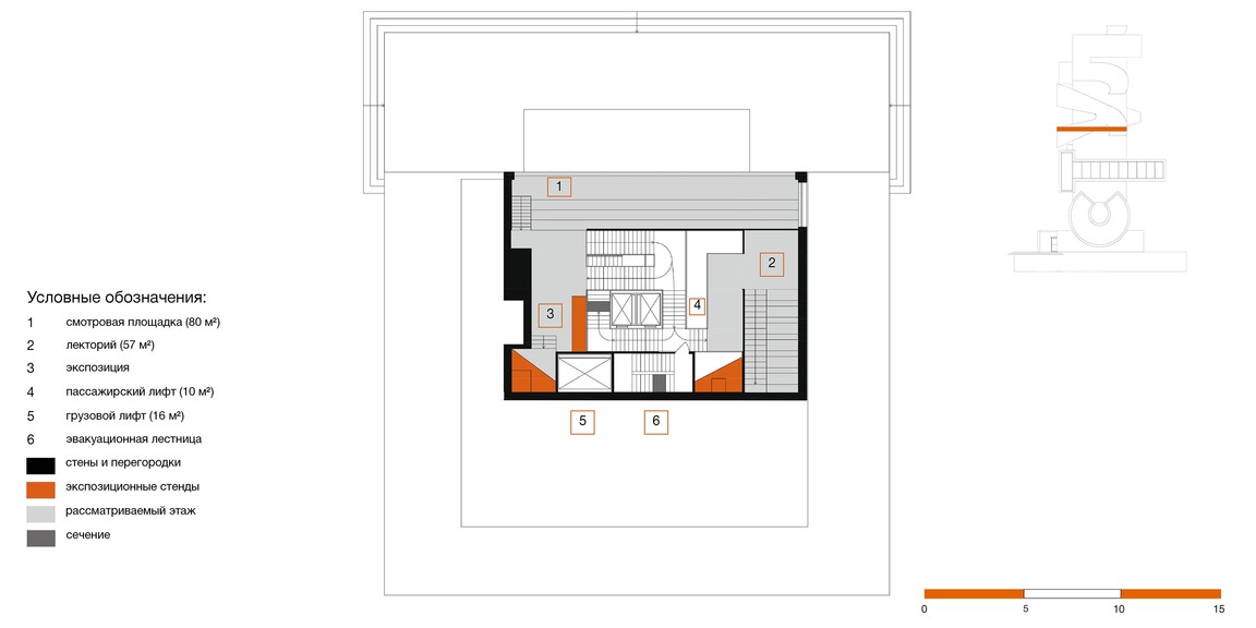
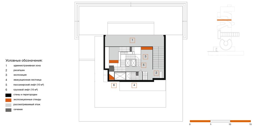
Пространство — приключение по истории

Пространство формируется из множества лестниц, образующих круговое движение, но по ходу экспозиции посетителю будет представлена возможность отойти от «кругового» течения истории и погрузиться в некотрые нюансы, выраженные в отдельных элементах экспозиции уходящей в иные направления от основного маршрута.


сечение, вид с западного фасада
внутреннее строение пространства